Burlington högspolande toalett för hörnmontage
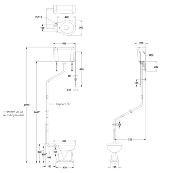
Burlington högspolande toalett i klassisk utformning med spolhandtag och mjukstängande sits. Denna toalett är avsedd att monteras i ett hörn som på bilden. Det går ändå att kombinera den med olika cisterner (porslin eller metall) och olika toalettunderdelar. Spolröret och övriga metalldelar kommer med kromad yta. Själva stolen kan fås i två olika sitthöjder, standard 395 mm (utan sits) och förhöjd 475 mm (utan sits) för långa personer eller personer med nedsatt rörlighet. Denna toalett har en unik kombination av klassiskt utseende och modern funktion. Den är utrustad med hel och halvspolning med justerbar spolmängd trots att det är en högspolande toalett. Tryck uppåt för halvspolning och drag nedåt för helspolning.
Toaletten med normal sitthöjd finns i två varianter:
– med S-lås (avlopp nedåt), vilket är standard och passar på svensk avsättning ca 12 cm.
– med P-lås (avlopp bakåt). Plaststos för anslutning till golvavlopp medföljer. För väggavlopp kan rak plaststos köpas till (installatör kan hjälpa till med detta).
Toaletten med förhöjd sitthöjd finns endast med utlopp bakåt (P-lås).
Tänk på att måtten på ritningen kan anpassas genom att såga av spolrören både i höjdled och i djupled. Tanken kan därmed placeras mycket lägre och stolen närmare väggen om man så önskar.
Vi levererar toaletten med anpassningsdetaljer för svensk avsättning (normalt ca 10-12 cm) och svenskt vattentryck. Vi monterar även cisterndetaljer och innanmäte som normalt kommer lösa i en påse vid köp av engelska toaletter.
Alla toaletter i Burlington-serien har s.k. nanoglasyr vilket gör att smuts och bakterier inte fastnar lika lätt som på vanligt porslin. Detta medför även att rengöring är enklare. Alla Burlington-produkter är även CE-godkända vilket gör dem godkända för användning inom hela EU.
Ifall man önskar ett traditionellt spolhandtag i kedja så går det att lösa med nedan tillägg:
EC27M110-RF – Porslinsspolhandtag med kromade detaljer (pristillägg + fungerar endast med helspolning).
Toaletten kan limmas fast istället för att skruvas i golv för att följa gällande installationsregler. Konsolerna under cisternen sitter bara där som dekoration. De behöver inte användas ifall man inte vill.
Observera att färgerna på bilderna är att se som riktlinjer då de kan förvanskas av skärmar, bildkomprimering och ljussättning.
Uppskattad leveranstid av ej lagerförda varor från denna leverantör är 5 v. Denna tid påverkas ± av yttre faktorer som övriga order, lagersituationer, semestrar, transporter m.m.












Allmän skötselanvisning


